KURZBESCHRIEB:
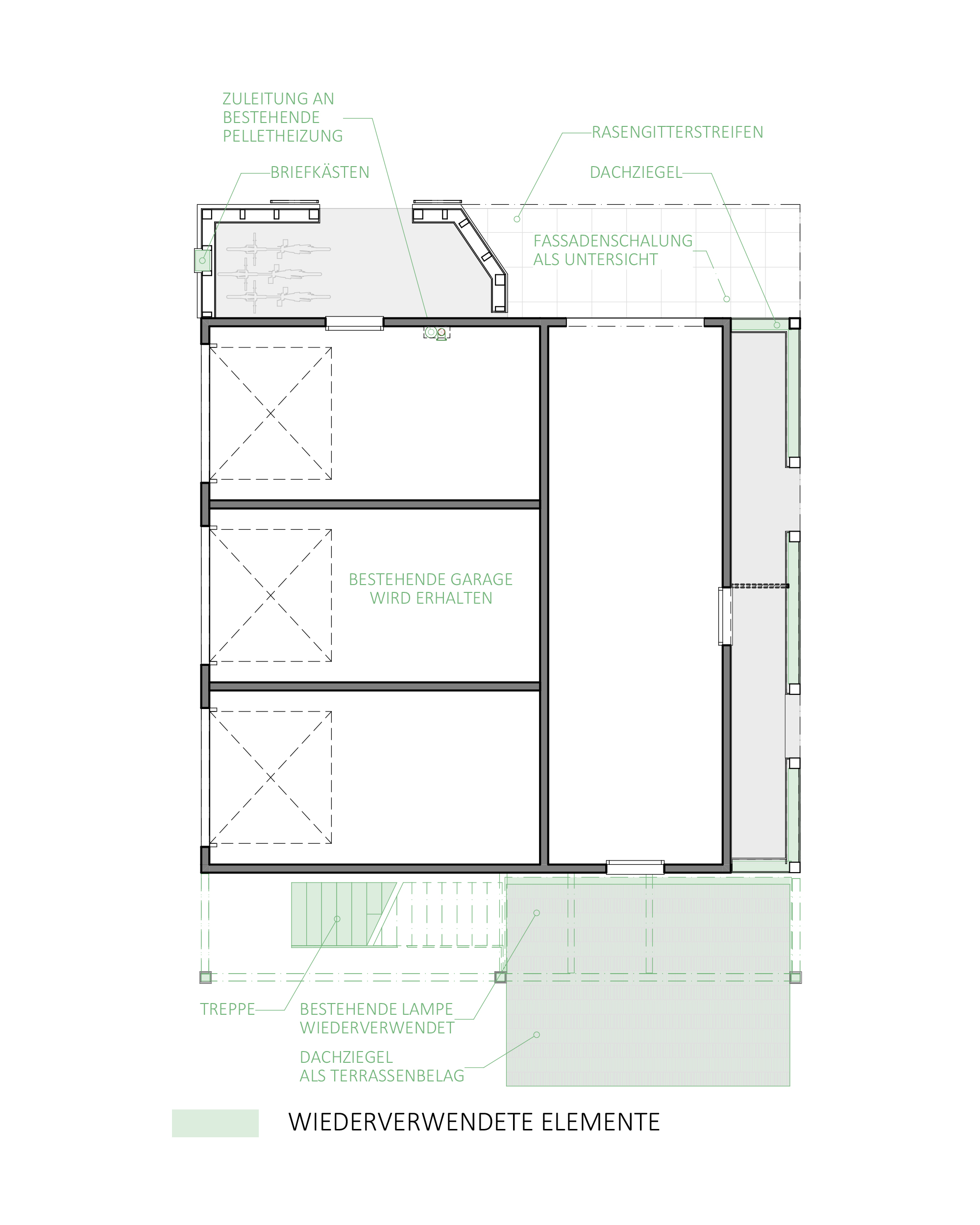
Durch die Aufstockung einer bestehenden Garage wird im Zentrum von Steinach ein Beitrag zur inneren Verdichtung geleistet. Dafür wurde der ursprüngliche, aufgesetzte Schopf in seine Bestandteile zerlegt und für den Bau von zwei zusätzlichen Wohneinheiten wiederverwendet. Unter stetiger Abwägung zwischen den Ansprüchen an das Ortsbild, den Lärmschutz, den Mietwohnraum und an die Kreislaufwirtschaft, tastet sich das Projekt spielerisch an die Grenzen des «Zumutbaren» heran, ohne dabei die Gesamtwirkung zu vernachlässigen.
LEISTUNGEN WISTER ARCHITEKTEN:
Projektierung, Ausschreibung, gestalterische Leitung
IN ZUSAMMENARBEIT MIT:
Atlas Tragwerke AG
VERFAHREN:
Direktauftrag 2022
AUFTRAGGEBER:
privat
NUTZUNG:
Mietwohnungen
HOLZBAU:
Gebhard Müller AG – Ideen in Holz
HAUSTECHNIKPLANER:
IG Energietechnik
FOTOS:
Katia Rudnicki
MEDIEN:
enecs NEW ARCHITECTURE
reuse – wiederverwendung am bau, sia st. gallen/appenzell
ecocircle Erhalten, Verdichten, Wiederverwenden, Energieagentur St.Gallen
Beitrag Tagblatt vom 25.01.2025
Elemente die
wiederverwendet wurden
Elemente die
weggelassen wurden
Elemente die
wiederverwendet werden
können







































